Продаж великої двокімнатної квартири в ЖК Панорама (№ 213-193-692)

Ціна: 55 800 $
Характеристики
| Ціна: | 55 800 $ |
|---|---|
| № об'єкта: | 213-193-692 |
| Кімнат: | 1 розд |
| Поверх: | 8 / 9 |
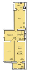
| Площа: | 71 / 36 / 19 м2 |
| Санвузол: | 1 сумісний |
| Балкон: | лоджія |
| Автономне опалення: | - |
| Додатково: | новобудова |
Адреса: Житомирська, Житомир, Богунія, вул. Героїв Десантників, 19
Продаж двокімнатної квартири в ЖК Панорама.
Квартира з грамотним плануванням, ізольованими кімнатами та просторою кухнею. Цегляний будинок, індивідуальне опалення, якісне утеплення. Площа: 71 м? Санвузол: суміщений Поверх: 8 Ціна за м? — 33?000 ? Підійде для сім’ї або під інвестицію. Район з розвиненою інфраструктурою — школа, садок, магазини, транспорт поруч..
Вид обєкта: Новобудова;
Тип будинку: Житловий фонд від 2021 р.;
Назва ЖК: Панорама;
Тип угоди: Від забудовника;
Тип стін: Цегляний;
Клас житла: Комфорт;










